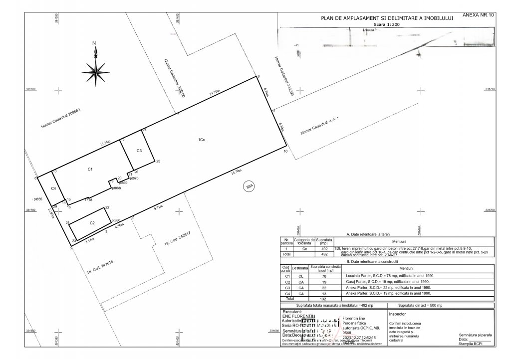
Vă propunem spre achiziție un teren cu o suprafață de aproximativ 500 mp, situat în cartierul Andronache, pe o stradă asfaltată, cu acces facil și toate utilitățile disponibile.
Detalii despre proprietate:
- Suprafață teren: ~500 mp
- Deschidere: 12,69 m
- Construcție existentă: Casă veche care poate fi renovată sau demolată în funcție de preferințele viitorului proprietar
Avantaje:
- Locație excelentă, într-un cartier liniștit și verde
- Proximitatea Pădurii Andronache, ideală pentru relaxare și activități în aer liber
- Toate utilitățile disponibile: apă, gaz, electricitate, canalizare
Destinație:
- Terenul este potrivit pentru construirea unei case noi, renovarea celei existente sau alte proiecte rezidențiale.
Vă invităm să vizionați această proprietate pentru a-i descoperi potențialul!