Am placerea sa va ofer spre vanzare acest spatiu comercial situat central, in Calea Plevnei nr 11-13, in apropiere de parcul Cismigiu si Izvor, Piata Kogalniceanu, cu trafic pietonal intens si acces la mijloace de transport in comun.
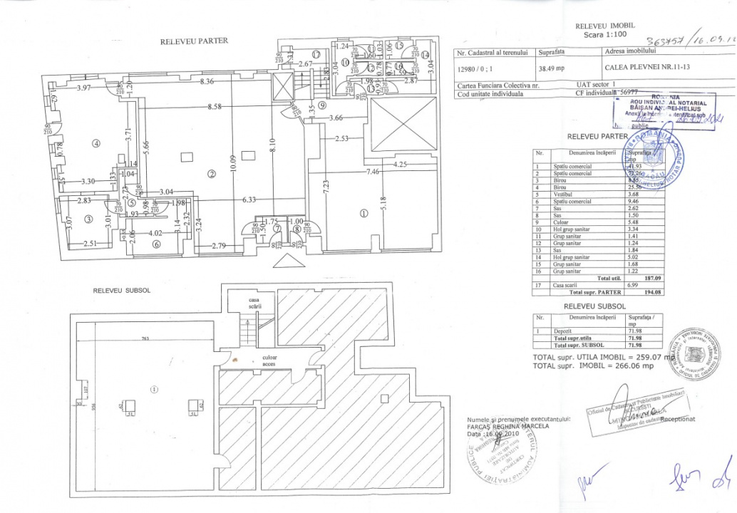
Spatiul este situat la Parter si Subsol de bloc (fara clasa de risc seismic sau urgente), cu 3 cai de acces (1 stradala si 3 laterale), are o suprafata utila de 266 mp din care 194 mp (Parter) si 72 mp (Subsol), parterul comunica cu subsolul printr-o scara interioara insa au si acces separat, o vitrina generoasa de 14 mp si tubulatura hota scoasa pe bloc.
Spatiul este functional, bransat la toate utilitatile (inclusiv 380V) si contorizat separat. Are de asemnea centrala proprie pe gaz.
Spatiul este inchiriat in acest moment si se solicita pastrarea contractului de inchiriere care are valabilitate pana in Noiembrie 2027 cu posibilitate de prelungire.
Este ideal pentru investitie !
*Informațiile și specificațiile prezentate sunt sau pot fi cu titlu informativ și nu reprezintă o obligație contractuală. Acestea pot fi modificate fără notificare prealabilă. Recomandăm verificarea tuturor detaliilor înainte de încheierea unei tranzacții.
Pentru mai multe detalii nu ezitati sa ma contactati.