Detalii
Casa de vanzare in Talmaciu are 4 camere si totalizeaza o suprafata utila 119 mp, cu suprafata teren de 470 mp. Deschiderea la strada este de 19 ml, iar suprafata terasei este de 20 mp. Imprejmuirea caselor este facuta de dezvoltatorul imobiliar, inclusiv gardul din strada, respectiv poarta de acces. Locuintele vor avea acces auto din strada, iar carportul va fi acoperit, asa cum se vede in poze.
Avantaje casa de vanzare in Sibiu - Talmaciu
- la doar 15 km distanta de Sibiu, drum pe patru benzi
- pret avantajos la lansarea proiectului
- comunitate mare, nou formata - 54 de unitati locative vor alcatui acest ansamblul rezidential
- dormitoare mari si luminoase si 3 bai
- aproape de magazine, scoli, gradinite
- incalzire in pardoseala pe ambele niveluri
- tamplarie PVC, 3 sticle, 5 camere
- contoare curent trifazic
- acces facil la DN1, dar si la autostrada
- cai de acces asfaltate, strada pavata de catre dezvoltator.
Stadiul de predare: Imobilul se va preda la stadiul de finisaj la gri interior.
Scurta descriere:
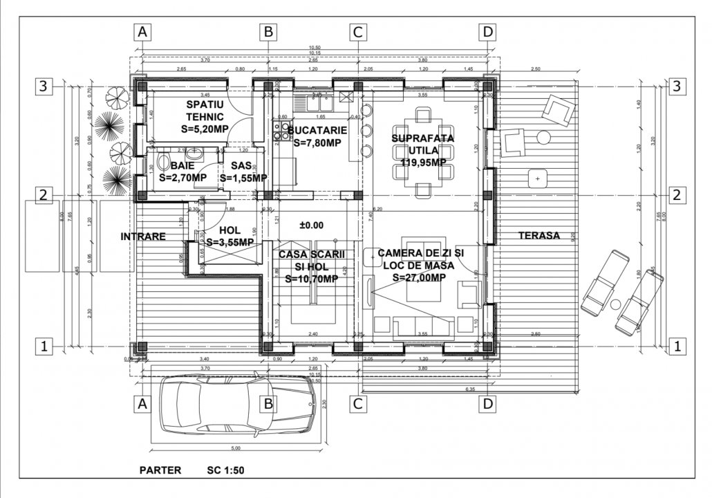
Locuinta are structura din beton si dispune de hol de acces, spatiu tehnic, 4 camere, bucatarie si 3 bai. Locuinta este frumos compartimentata si fiecare mp este folosit practic, pentru confortul locatarilor.
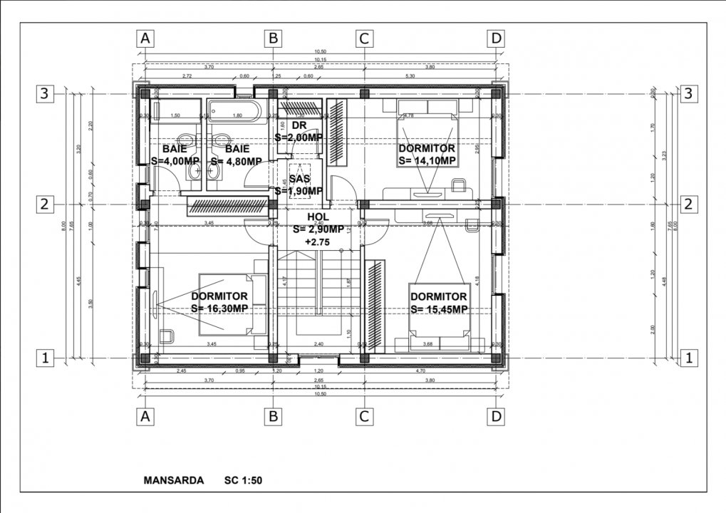
Regimul de inaltime al casei este: P+M
Parter: La parterul casei regasim holul de acces, 1 baie, living si bucatarie si spatiul tehnic.
Mansarda: La mansarda casa are trei dormitoare mari (16,30 mp, 15,5 mp si 14 mp), doua bai (una la dormitorul matrimonial) si un spatiu de depozitare.
Loc de parcare: Casa de vanzare beneficiaza de acces auto in curte, direct din strada.
Premium (zidarie exterioara, la parter, imbracata in lambriu; pergola - constructie solida de lemn - executat in fata casei, lateralul casei si spatele casei; gard la strada executat din gabioane, stalpi de beton imbracati in piatra; sistem de irigati spatii verzi automatizat; gradina amenajata cu gazon si pomi ornamentali.
Desi s-au depus toate eforturile pentru a asigura exactitatea acestor detalii, vanzatorul sau agentul nu ofera nici o garantie cu privire la acuratetea acestora. Partile interesate nu ar trebui sa se bazeze pe aceste date ca reprezentari de fapt, trebuie sa se convinga prin inspectie sau in alt mod. Casa se poate preda la cheie contra-cost. Fotografiile sunt utilizate pentru prezentare si sunt realizate in cadrul altei case deja vanduta din acest ansamblu rezidential.
Va multumim ca ati citit anuntul nostru si va stam la dispozitie pentru orice detaliu sau vizionare, Echipa Klic imobiliare!