Detalii
Agentia Nova Imob va propune spre vanzare cu COMISION 0, un duplex intabulat in suprafata utila de 110 mp, amplasat pe un teren de 360 mp situat in Sura Mica, Sibiu;
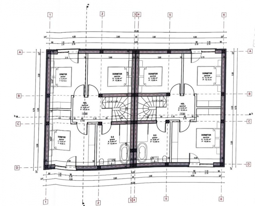
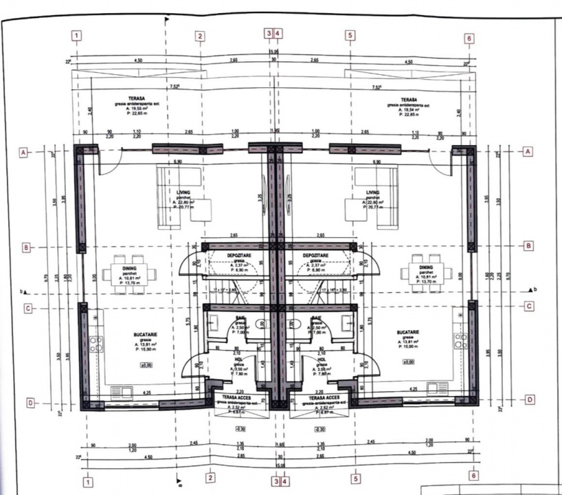
Compartimentare:
Parter: living cu dinning si bucatarie deschisa, spatiu de depozitare, baie, hol, terasa;
Etaj: 3 dormitoare, baie, hol;
Predare:
Interiorul cu: glet, tamplarie PVC cu geam termopan cu 3 foi de sticla, pompa de caldura, pod izolat cu vata de lemn;
Exteriorul cu: termosistem cu polistiren de 15 cm, pergola de aluminiu, acces auto si pietonal pavat, gard din lamele orizontale de aluminiu, balustrada din lamele orizontale de aluminiu;
Avantaje:
- zona linistita de case;
- locuinta eficienta energetic;
- teren generos;
- acces facil catre autostrafa;
Pret: 169.000 Euro - COMISION 0
Tel: 0749 889 743 - Gabriel