Detalii
Locuinta moderna de vanzare, parte dintr-un imobil tip quadruplex, cu regim de inaltime Parter + Etaj, cu un teren liber de 50 mp si suprafata utila de 110 mp. Proprietatea este ideala pentru o familie care isi doreste confort, eficienta si o zona in continua dezvoltare.
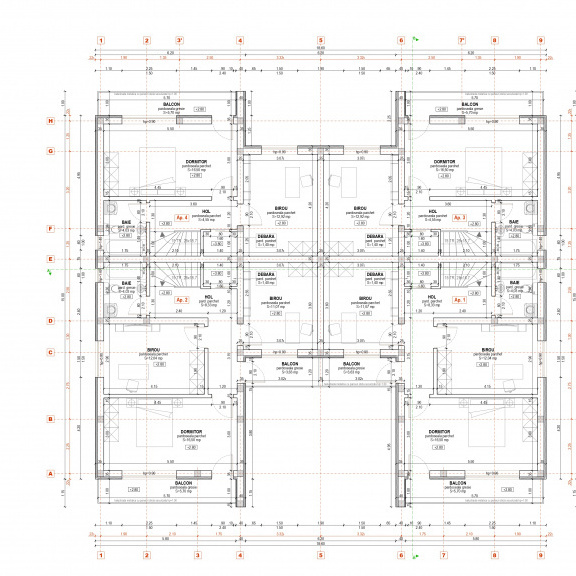
Compartimentare practica:
- Parter: living generos (29.34 mp), bucatarie separata (11.07 mp), baie de serviciu cu geam (4.03 mp), hol (4.55 mp) si casa scarii (5.15 mp), hol intrare ( 3 mp );
- Etaj: trei camere ( 16.50 mp, 12.04 mp, 11.07 m ), hol ( 8.33 mp ), baie ( 4.03 mp ), 2 balcoane ( 5.70 mp si 3.63 mp );
- Balcon: 5.07 mp, ideal pentru relaxare.
Predare la stadiul de alb finisat cu: Izolatie exterioara cu polistiren EPS80 de 10 cm si tencuiala decorativa alb + gri antracit, tamplarie PVC Salamander, 5 camere, 3 foi de sticla, feronerie Maco, acoperis cu structura completa si izolatie cu vata de 25 cm, rigips antifoc, burlane metalice, usa de acces termoizolanta Salamander.
Interior: pereti tencuiti si zugraviti cu lavabila alba, instalatii electrice si pentru curenti slabi (TV, internet), incalzire in pardoseala pe ambele nivele cu centrala in condensatie, termostate individuale, contorizare separata (gaz, curent, apa), racorduri functionale in baie si bucatarie.
Predare: Septembrie 2025
Pret: 153.000 Euro + TVA 21 % = 185.130 - COMISION 0
Tel: 0765 032 466 - Anca