Detalii
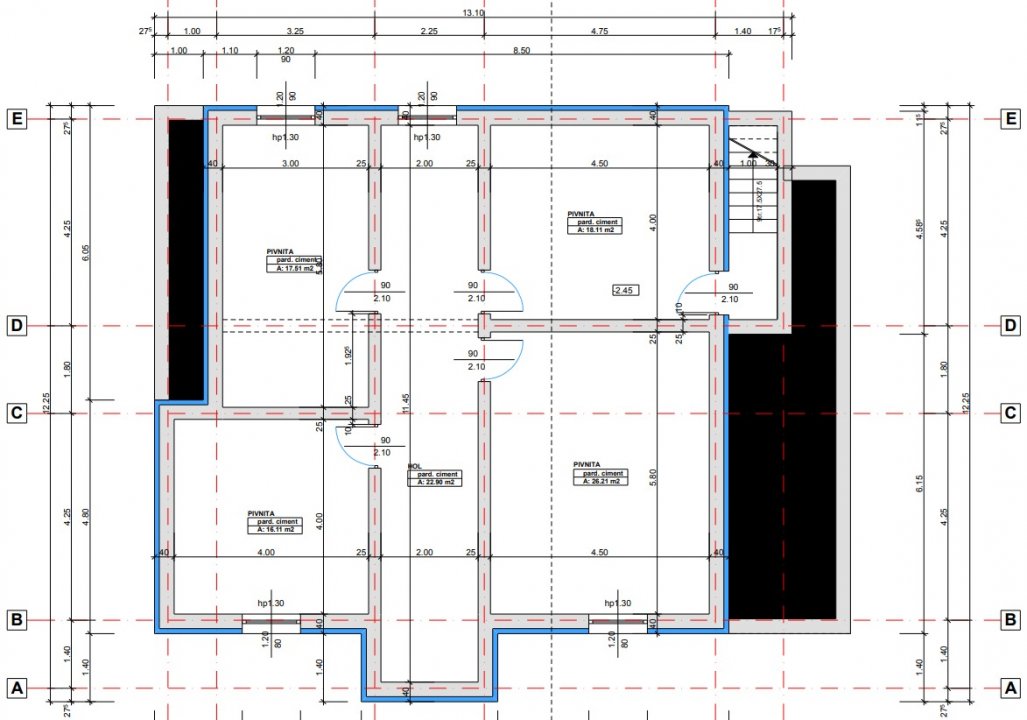
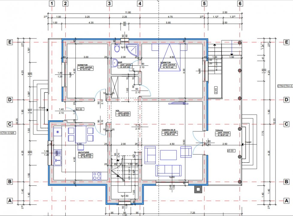
Va propunem spre vanzare cu COMISION 0, o proprietate noua, individuala, cu un regim de inaltime D+P+M, amplasata pe un teren de 1475 mp, situata in Orlat, Sibiu;
Compartimentare:
Demisol: 4 incaperi, hol;
Parter: living, bucatarie, 2 dormitoare, baie, hol;
Mansarda: 4 dormitoare, 2 bai, hol, dressing;
Finisaje si imbunatatiri: tamplarie PVC Veka cu 7 camere si 3 foi de sticla, centrala termica, gresie si faianta, parchet laminat;
Locuinta se preda cu interiorul la alb si exteriorul la cheie.
Avantaje:
- curent trifazic;
- locuinta noua;
- 15 minute de Orasul Sibiu;
Pretabilitate: pensiune, camin de batrani, locuinta;
Pret: 300.000 Euro - COMISION 0
Tel: 0749 244 824 - Georgiana