Detalii
Cod:#PFL
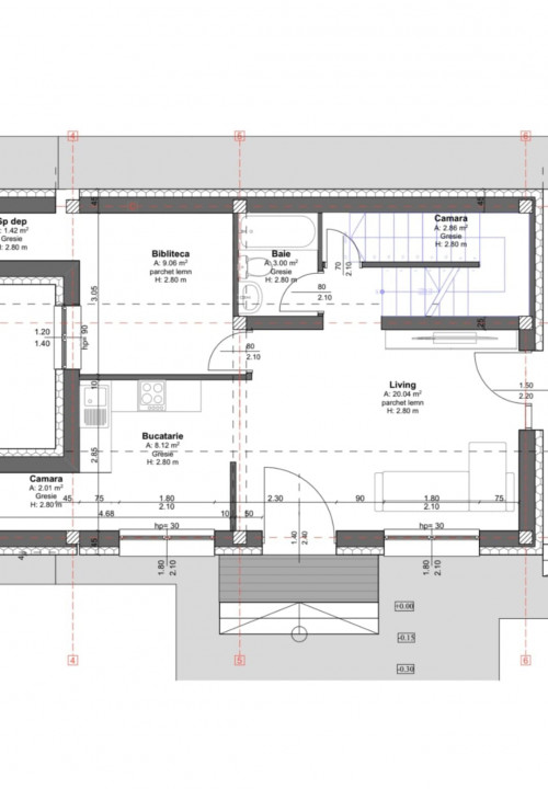
Se vinde jumatatea unui duplex, pe plan parter si 1 etaj, intr-o zona linistita si aerisita a orasului, cu o suprafata utila de 110 mp si construita de 130 mp.
Este compusa din: 1 living, 2 dormitoare, 1 bucatarie deschisa, 1 camara, 1 camera tehnica, 2 bai cu geam (una la parter + una la etj.), 1 dressing si 1 balcon deschis.
Dispune de teren cu o suprafata de 350 mp, FS 17 m liniari, cu toate utilitatile: curent trifazic, apa retea, canalizare si gaz la limita proprietatii.
Particularitati: constructie din caramida porotherm, cu izolatie exterioara EPS 80 cu grosime de 10 cm, instalatii sanitare trase la pozitie, interior finisat si zugravit in alb, parchet si usi de interior montate, exceptie facand cele 2 bai, unde exista posibilitatea personalizarii acestora. Incalzirea este prin pardoseala.
Acoperisul de tip terasa, este multifunctional: de la zona cu panouri solare pana la loc de recreere, loc pt fitness, etc.
Accesul la proprietate: prin drum asfaltat si o portiune de 10 m drum privat, pietruit...deocamdata.
Disponibilitate: imediat.
Se accepta credit bancar.
Agentia imobiliara Era-9 nu percepe nici un fel de comision de la cumparator!
Oferim suport servicii: consultanta obtinere credite bancare/ servicii notariat/ servicii de topografie(schita, releveu)/ certificate energetice imobile/ asigurari/ servicii de evaluare;
#MergemManaInMana