Va oferim spre închiriere Spatii de Birouri intr-o cladire pozitionata central, la intersectia dintre Calea Vitan si Splaiul Unirii
Momentan avem disponibil la etajele 7 si 8 suprafete cuprinse intre 47 si 300 mp
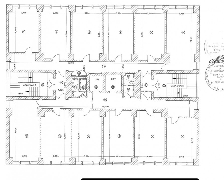
Spatiile sunt deja compartimentate in incaperi de aproximativ 23 mp dotate cu calorifer, aer conditionat, fereastra mare si mobilier la cerere
Pe fiecare etaj sunt 12 camere x 23 mp + 2 grupuri sanitare cu acces la 2 lifturi si 2 scări
Se accepta închirierea a minim 2 încăperi!
Începând de la 3 birouri respectiv 6 birouri prețul pe metru pătrat scade!!!
La fiecare 3 încăperi închiriate se oferă loc de parcare gratuit. Separat se poate achiziționa loc parcare cu 300 lei / Luna + TVA
In parcarea clădiri este instalata stație electrica pentru mașinile electrice
Pret / mp = 9.5 euro + TVA
Pret utilitati = 3 euro mp +TVA
Clădirea are autorizaţie de securitate la incendiu
Pentru detali si vizionari nu ezitati sa ma contactati!