Detalii
Zona Calea Calarasilor, Hala Traian. Cladire numai pentru birouri.
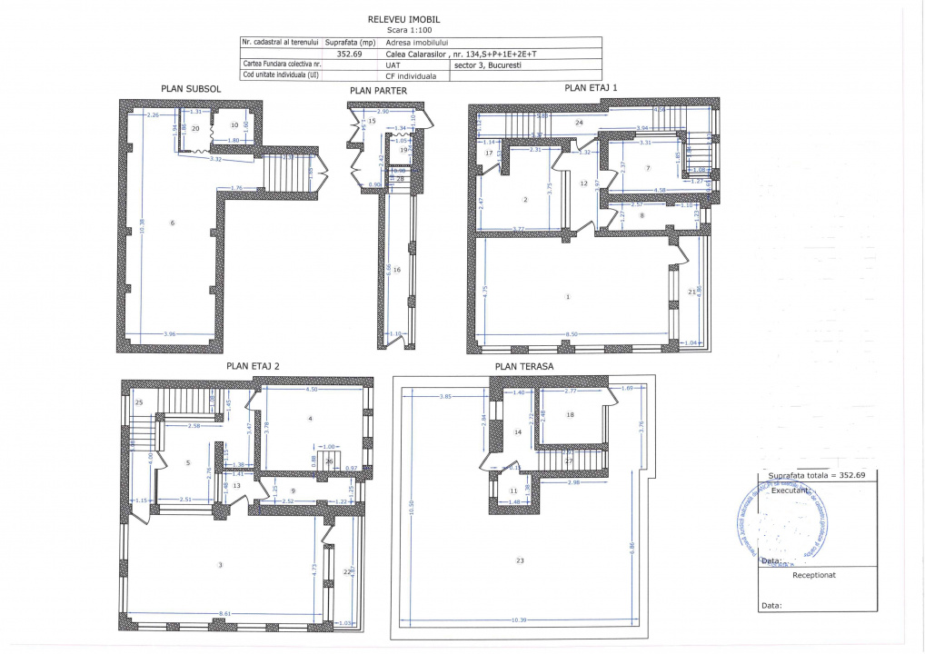
Spatiu birou, dispus pe demisol, et 1, etaj 2, terasa din D+P+1+2+T, format din 6 camere, din care, 2 camere open space, demisol 45mp, open space, 2 bucatarii, 4 bai, hol, 2 balcoane. An constructie 2024, suprafata utila totala 352.69mp. Teren 103.48 mp.
Finisaje: gresie, faianta, termopan, parchet, mocheta, interfon, terasa refacuta 2025.
Dotat cu aer conditionat, centrala termica proprie, contorizat separat pe fiecare etaj.
Spatiul se vinde nemobilat, bucataria este mobilata, daca se doreste si mobila de birou se poate discuta.
Este stradal, usor de gasit.
Proprietar persona fizica.
Certificat energetic clasa A Consumul anual specific de energie (KWH/mp/an) - 127.64 Indicele de emisie echivalent CO2 (KgCO2/Mp/an) - 18.37 Consum anual specific de energie din surse regenrabile (KWH/mp/an) - 0.