Detalii
Apartament deosebit de închiriat – Bd. Eroilor, Cluj-Napoca – în inima orașului, într-o clădire istorică!
Vă propun spre închiriere un apartament spectaculos, situat pe Bulevardul Eroilor, în imediata apropiere de Piața Unirii, în Casa Mică Bánffy – un veritabil palat baroc, monument istoric.
Este locuința ideală pentru cei care își doresc un stil de viață urban, rafinat, într-o locație unică, dar totuși liniștită, cu vedere atât spre bulevard, cât și spre curtea interioară.
✨ Detalii și compartimentare:
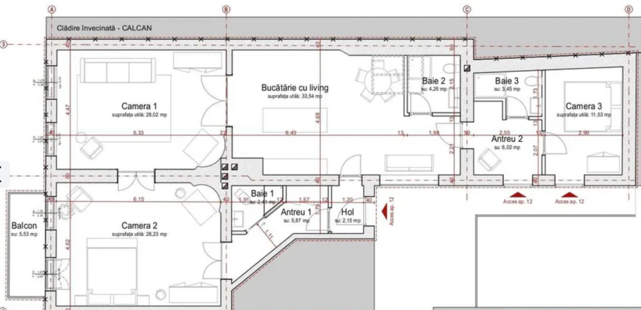
Suprafață generoasă, cu înălțimi impresionante de 4,5 m
1 living spațios și luminos
2 dormitoare, unul cu balcon spre Bd. Eroilor
Bucătărie elegantă, cu luminator natural
3 băi complet amenajate
Holuri largi și bine proporționate
🏛️ Caracteristici și finisaje:
Elemente originale restaurate: tâmplărie din lemn, uși masive, teracote din șamotă
Pardoseli din lemn masiv, gresie și faianță de calitate superioară
Mobilier minimalist realizat la comandă
Instalații noi (termice, electrice, sanitare)
Centrală proprie cu rezervor de acumulare
Sistem de supraveghere video
Balconul elegant de pe fațadă oferă o priveliște superbă asupra vieții urbane, fiind perfect pentru momentele de relaxare.
📞 Pentru mai multe informații și pentru programarea unei vizionări, vă invit să mă contactați cu încredere.