Detalii
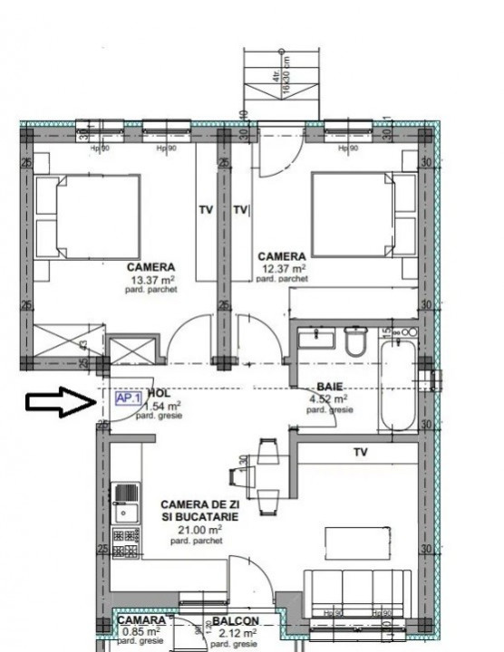
Va propunem spre vanzare cu COMISION 0, un apartament cu 3 camere amplasat la etajul 1, in suprafata utila de 52.8 mp + 2.12 mp balcon + 0.85 mp camara, situat in Zona Selimbar.
Compartimentare: camera de zi si bucatarie in suprafata de 21 mp, 2 dormitoare de 12.37 mp si 13.37 mp, baie in suprafata de 4.52, hol de 1.54, balcon de 2.12 si camara de 0.85 mp.
Predare:
Exteriorul la cheie cu: izolate exterioare cu polistern de 10 cm, tencuiala decorativa, parcari amenajat, zona comune amenajate;
Interiorul la cheie cu: pereti tencuiti, gletuiti si zugraviti cu lavabila alba, centrala termica cu incalzire in pardoseala, gresie, faianta, parchet, usi de interior, usa metalica la intrare, Iinstalatii electrice-termice - sanitare;
Avantaje:
- acces facil catre majoritatea punctelor de intreres;
- loc de parcare inclus in pret;
- 2 apartamente pe nivel/4 apartamente pe scara;
- mijloace de transport in comun ( la 500 m de mers pe jos );
Pret: 113.500 Euro - COMISION 0
Tel: 0749 889 743 - Gabriel