Amenajare strazi (Asfaltate), Iluminat stradal, Mijloace de transport in comun
Vecinătăți:
Facilități
Curent
Apa
Canalizare
Gaz
CATV
Acces internet
Fibra optica
Centrala proprie
Incalzire pardoseala
Finisat
Vopsea lavabila
Ferestre PVC
Rulouri Aluminiu
Usa Intrare Metal
Nemobilat
Boxa la subsol
Bucatarie nemobilata
Bucatarie neutilata
Apometre
Contor gaz
Videointerfon
Lift
Spatii agrement
Acoperis
Gradina
Telecomanda poarta acces auto
Detalii
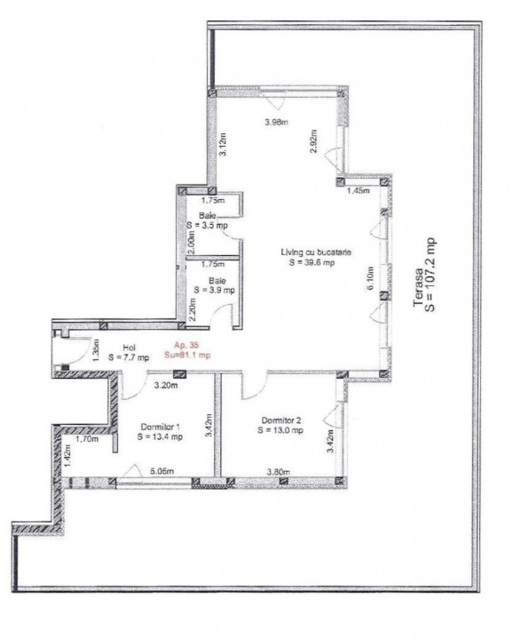
Penthouse cu Terasă Panoramică – Lux și Confort la Cel Mai Înalt Nivel
Un penthouse spectaculos, unde luxul întâlnește funcționalitatea, oferindu-ți spațiu, intimitate și o priveliște de excepție asupra orașului și munților.
Puncte forte:
Terasa privată – un refugiu urban cu vedere panoramică
Living spațios, plin de lumină naturală
Dormitoare elegante, cu finisaje premium
Băi moderne, dotări de top
Dotări exclusive:
Parcare subterană cu acces controlat
Video interfon, lift KLEEMANN, scări placate cu marmură
Boxă de depozitare la subsol și buncăr subteran
Zonă de fitness în aer liber și spații verzi amenajate
Situat într-o locație premium, acest penthouse este ideal pentru cei care își doresc un stil de viață superior, într-un mediu sigur și modern.
Preț: la acest pret afisat se va aplica TVA de 19%, iar stadiu de predare va fi la alb.
Contactează-ne pentru o vizionare!