Detalii
Vânzare apartament 3 camere în Sibiu, zona Doamna Stanca
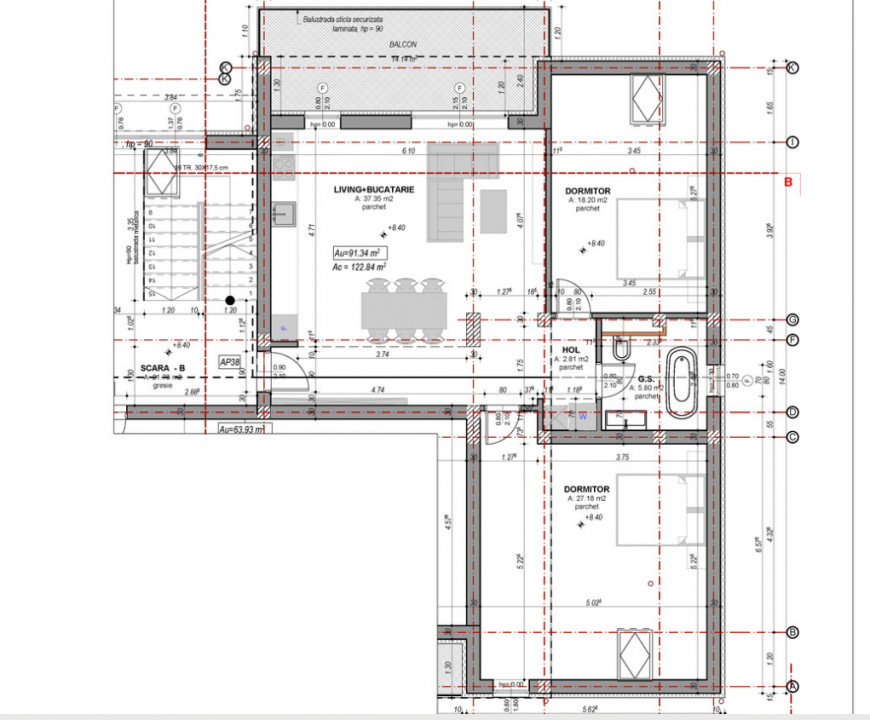
Alege confortul și rafinamentul unei locuințe moderne și finisate complet într-un ansamblu rezidențial nou construit în 2022-2024. Apartamentul de 91,34 mp utili este compartimentat decomandat, dispune de 3 camere, o baie și un balcon de 14,14 mp. Imobilul se află la etajul 3 al unui bloc de 3 etaje situat într-o zonă liniștită și verde din Sud-Estul orașului Sibiu, mai exact în zona Doamna Stanca.
Cu o arhitectură modernă și finisaje elegante, apartamentul beneficiază de izolație termică la exterior și acoperiș din țiglă. Accesul în imobil se realizează prin intermediul unui interfon cu cartela pentru confort și siguranță sporită. Printre caracteristicile proprietății se numără: centrala termică prin condensare marca Ariston de 24 kw, încălzire prin pardoseală marca Sistema, tamplarie PVC cu geam termopan și protecție solară, contoare individuale de gaze, apă și curent, iluminat stradal și acces facil către arterele principale ale orașului.
Apartamentul este compartimentat într-un mod practic și eficient, dispunând de un dormitor matrimonial generos 27mp și luminos, un altul de 18mp și o zonă de living cu bucatarie spațioasă si deschisa, de 37,35 mp cu acces la balconul de 14,14mp.
O altă caracteristică importantă a proprietății este faptul că ansamblul rezidențial în care se află este amplasat într-o zonă armonioasă, ferită de zgomotul și agitația orașului, dar totodată aproape de magazine precum Dedeman sau Shopping City Sibiu, restaurante, cafenele, parcuri și instituții de învățământ și bancare.
Apartamentul dispune și de un loc de parcare amenajat. Apartamentul se preda la stadiul de cheie, gresie, faianță, parchet, uși de interior, obiecte sanitare.
Pentru a viziona această proprietate sau pentru a obține mai multe detalii, nu ezitați să ne contactați! Echipa Klic imobiliare vă stă la dispoziție în orice moment!