Amenajare strazi (Asfaltate), Iluminat stradal, Mijloace de transport in comun
Vecinătăți:
Facilități
Curent
Apa
Canalizare
Gaz
CATV
Acces internet
Fibra optica
Centrala proprie
Incalzire pardoseala
Finisat
Izolat la exterior
Bloc izolat termic
Vopsea lavabila
Faianta
Parchet
Gresie
Ferestre PVC
Usa Intrare Metal
Usa Interior Lemn
Usa Interior Panel
Nemobilat
Terasa
Bucatarie nemobilata
Bucatarie neutilata
Apometre
Contor gaz
Interfon
Gradina
Detalii
De cât timp cauți un apartament premium, ultrafinisat, care să îți ofere tot confortul de care ai nevoie?
Te-ai gândit cum ar fi să locuiești într-un apartament de 4 camere, unde fiecare dormitor are propria baie, finisaje de lux și dotări de ultimă generație?
Ce ar însemna pentru tine să te bucuri de:
Confort termic maxim datorită izolației cu vată bazaltică.
O atmosferă liniștită și relaxantă, datorită geamurilor premium cu 3 foi de sticlă și 3 garnituri.
Siguranță deplină pentru familia ta, asigurată de un sistem de supraveghere video non-stop.
Un design modern și elegant, pus în valoare de balustradele din sticlă securizată și finisaje premium.
Un loc de parcare inclus în preț, astfel încât să scapi de grija găsirii unui loc liber.
Apartamentul va fi predat complet finisat, astfel încât să te poți muta fără griji. În plus, încălzirea în pardoseală și centrala termică Bosch în condensare îți oferă un confort termic superior și un consum redus de energie.
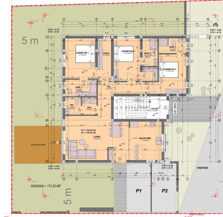
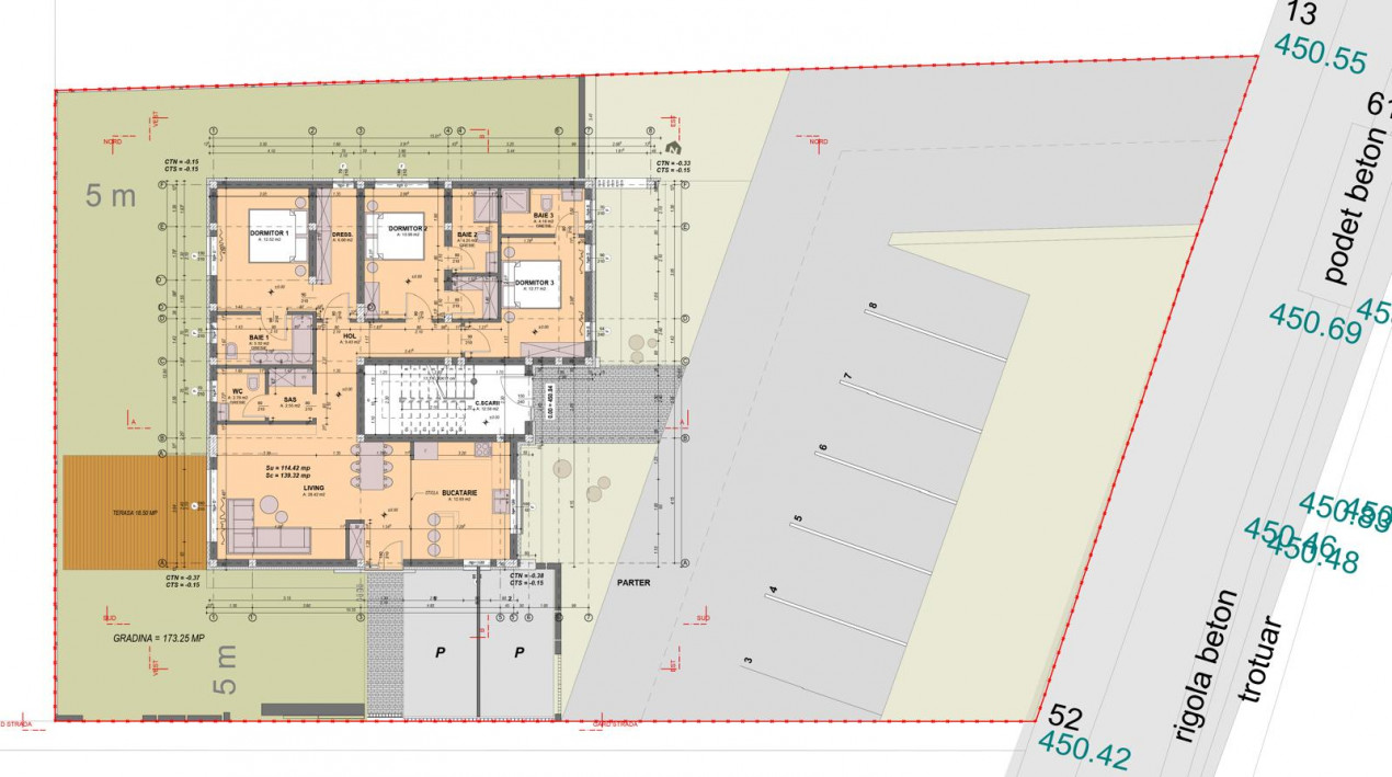
Acest apartament se afla la parter si are o suprafata de 115 mp utili, completat de o curte privată de 200 mp, perfectă pentru momentele de relaxare în aer liber.
Este acest apartament ceea ce cauți? Contactează-ne pentru a afla mai multe detalii!