Detalii
Bine ați venit la o oportunitate unică de a vă transforma viața într-o experiență de locuit excepțională! Vă prezentăm cu mândrie un apartament elegant cu 4 camere, situat în vila Michelangelo, parte a complexului rezidențial Da Vinci din pitorescul oraș Cristian. Cu o suprafață generoasă de 143,87 mp utili, această locuință oferă un mod de viață rafinat într-un mediu prietenos și liniștit.
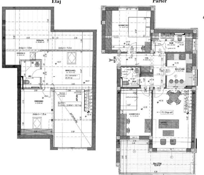
Cu compartimentarea sa inteligentă, acest apartament îmbină armonios spațiile funcționale și confortul optim. La parter, vă întâmpină un living spațios de 19.69 mp, un dormitor primitor de 13.43 mp, o bucătărie spatioasa de 8.53 mp, o baie elegantă de 5.38 mp, un hol generos de 6.52 mp și un balcon încântător de 7.29 mp. La etaj, descoperiți un hol spațios de 8.30 mp, o a doua baie de 4.22 mp, un dormitor relaxant de 15.51 mp și spații de depozitare practice de 13.04 mp.
Confortul termic este prioritar, datorită incalzirii în pardoseală pe întreaga suprafață, garantând un ambient plăcut și constant pe tot parcursul anului. Izolația exterioară cu vată bazaltică asigură eficiența energetică a imobilului, traducându-se în economii semnificative la costurile de încălzire.
Balconul complet finisat la cheie, cu gresie și balustrade din sticlă securizată, vă invită să vă relaxați și să savurați priveliștea unică spre muntii din jur, într-un cadru sigur și elegant. Jaluzelele exterioare electrice în nuanta gri antracit adaugă un element modern și funcțional, asigurând intimitatea și controlul luminii.
Intrarea în apartament este marcantă prin usa premium, oferind atât siguranță, cât și un design estetic deosebit. Casa scării este placată cu gresie de înaltă calitate și balustradă metalică, creând un ambient primitor și elegant.
Complexul rezidențial Da Vinci este gândit pentru a oferi o viață de calitate, iar spațiile verzi amenajate cu gazon și plante ornamentale contribuie la crearea unei atmosfere relaxante și reconfortante. Locul de parcare amenajat inclus în prețul apartamentului este o facilitate prețioasă, eliminând orice grija legată de găsirea unui loc potrivit pentru mașina dumneavoastră.
Aceasta este șansa dvs. de a vă transforma viața într-o experiență de locuit deosebită, într-un apartament cu finisaje premium și facilități moderne. Nu ratati ocazia de a trăi într-un spațiu care reflectă eleganța, confortul și frumusețea pe care le meritati. Contactați-ne pentru a programa o vizionare și a vă convinge personal de toate avantajele acestei proprietăți excepționale!