Detalii
ATENȚIE! NU CUMPĂRA DACĂ NU SUPORTI CONFORTUL ȘI SOARELE!
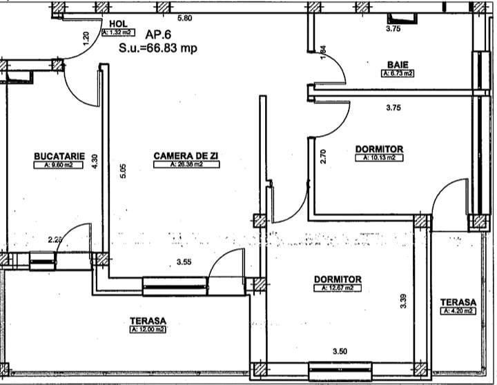
Se vinde un apartament care nu-ți dă pace: 3 camere, perfect compartimentat, 67 mp utili care nu irosesc niciun centimetru, la etajul 1 din 3 — pe partea însorită, desigur, pentru cei care nu fug de lumină ca vampirii.
📍 Strada Liviu Ciulei, chiar la intrarea în Cartierul Arhitecților — adică nu stai blocat în trafic ca restul lumii. Acces rapid spre oraș, pe la Kaufland sau Dedeman. Ai totul la doi pași: magazine (Kaufland, Lidl, Penny), sală de fitness, benzinărie, grădiniță, creșă, autobuz, stomatolog. Dacă ai nevoie de ceva și nu e aproape, probabil nu ai nevoie de acel ceva.
Detalii care n-au voie să fie ignorate:
Terasă de 12 mp — da, 12, nu e greșeală, plus o cămară și o debara acolo, că doar nu pui murăturile în sufragerie.
Balcon închis cu termopan, 4 mp — locul perfect pentru cafeaua de dimineață sau scăpatul de musafiri.
Boxă în pod + loc de parcare inclus — nu mai plătești parcări dubioase sau îți ții bicicleta în sufragerie.
Construit în 2015 — nu e din epoca rece, n-ai să simți miros de igrasie și mucegai.
Se vinde așa cum e — mobilat, utilat, gata de mutat. Ai centrală termică, plită pe gaz, cuptor electric, frigider, mașini de spălat (haine și vase), hotă, TV, plase anti-insecte, tot pachetul. Nu trebuie să aduci decât periuța de dinți. Eventual și o pătură.
Compartimentare clară, fără labirinturi:
Bucătărie: 9,6 mp — nu te lovești de frigider când întinzi mâna după sare.
Living: 26,4 mp — da, 26! Nu-l confunda cu sufrageria altora.
Dormitor 1: 12,7 mp
Dormitor 2: 10,13 mp
Baie cu geam (pentru că merităm aer curat): 6,7 mp
E simplu: dacă vrei un apartament aerisit, luminos, practic și gata de locuit, îl ai.
Dacă vrei să tot cauți alternative mai ieftine, mai întunecoase și mai prost compartimentate, nu suna.
Dar dacă vrei ceva ce chiar merită, nu te mai gândi. Sună. Acum.