Detalii
Apartament modern cu 2 camere – Posibilitate de amenajare în 3 camere, Zona Doamna Stanca, Sibiu
Te-ai gândit vreodată să găsești apartamentul perfect, care să îmbine confortul, flexibilitatea și o locație de top? Acum ai ocazia! Acest apartament cu 2 camere, situat într-un ansamblu rezidențial modern din zona Doamna Stanca, este finalizat, intabulat și oferă chiar posibilitatea de a fi transformat în 3 camere, pentru a se adapta nevoilor tale.
Spațiu versatil și bine gândit:
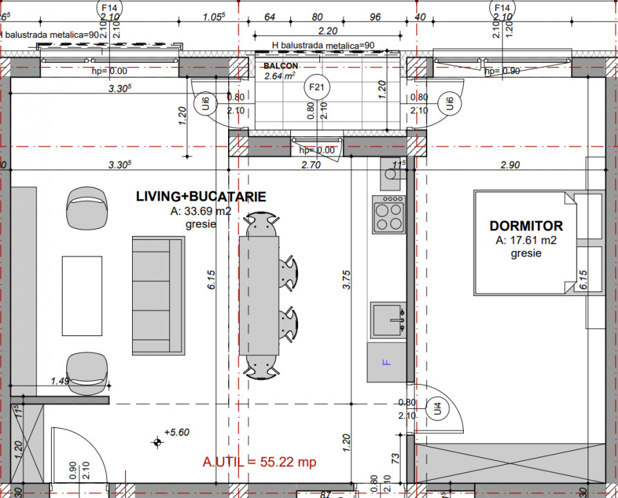
Suprafață utilă de 55 mp: Apartamentul este decomandat, având 2 camere generoase, o baie modernă și un balcon spațios.
Flexibilitate în amenajare: Datorită compartimentării inteligente, locuința poate fi transformată cu ușurință din 2 camere în 3 camere, pentru a răspunde cerințelor tale.
Poziționare ideală: Situat la etajul 2 dintr-o clădire cu doar 2 etaje+mansarda, construită în 2024.
Dotări și finisaje premium:
Finisat la cheie: Gresie, parchet, faianță, obiecte sanitare, și centrală proprie sunt deja incluse. Tot ce rămâne este să adaugi propriul stil.
Încălzire în pardoseală: Asigură confort termic și eficiență energetică ridicată.
Clasa energetică A: Pentru un consum redus și un impact minim asupra mediului.
Detalii de calitate:
Tâmplărie PVC cu termopan.
Uși interioare din lemn și panel.
Pereți finisați cu vopsea lavabilă.
Izolație termică exterioară, pentru un mediu interior confortabil pe tot parcursul anului.
Avantaje suplimentare:
Locație excelentă: Amplasat la limita dintre Șelimbăr și Sibiu, ansamblul oferă acces rapid la stații de transport, școli, grădinițe, piață, magazine și Shopping City Mall.
Posibilitate de personalizare: Transformă apartamentul în 3 camere sau bucură-te de spațiul generos al celor 2 camere.
Ideal pentru locuit sau investiție: Zona este foarte căutată, iar apartamentul este gata de utilizare.
Acest apartament finalizat și intabulat reprezintă oportunitatea perfectă pentru a te muta imediat sau pentru a realiza o investiție inteligentă. Cu dotări premium, posibilitate de personalizare și o locație excelentă, este alegerea potrivită pentru orice stil de viață.
Contactează-ne astăzi pentru mai multe detalii și programează o vizionare! Descoperă apartamentul care îți oferă tot ce ai nevoie!