Detalii
Apartament Modern cu 2 Camere și Grădină Privată – Zona Doamna Stanca, Sibiu
Confortul unei case, avantajele unui apartament
Dacă visezi la un spațiu modern, cu grădină proprie, unde să te bucuri de intimitate și relaxare, acest apartament este alegerea perfectă. Situat într-un ansamblu rezidențial nou, într-o zonă în plină dezvoltare, îți oferă combinația ideală între confort, funcționalitate și accesibilitate.
Spațiu generos și flexibilitate maximă
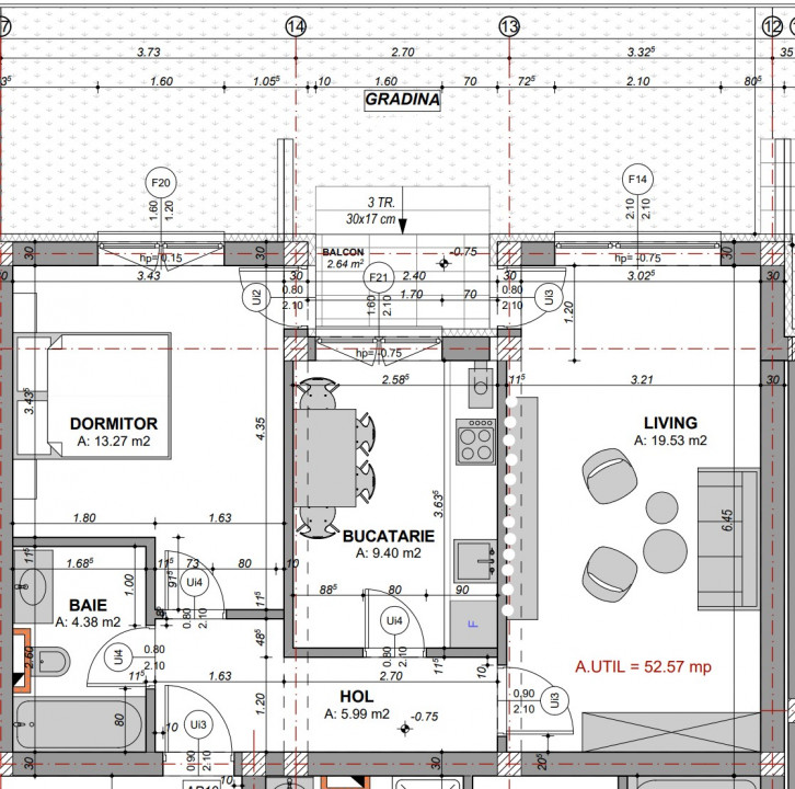
Suprafață utilă: 52,57 mp, cu o compartimentare eficientă și posibilitatea de reconfigurare în 3 camere.
Grădină privată: 57 mp – un loc ideal pentru relaxare, grătar sau chiar pentru un spațiu verde personalizat.
Balcon: Un plus de confort și spațiu pentru momentele de liniște.
Finisaje premium și dotări moderne
Predare la cheie: Gresie, parchet, faianță și obiecte sanitare incluse, pentru un apartament complet amenajat.
Încălzire în pardoseală: Eficiență energetică ridicată și confort termic superior.
Centrală proprie: Control complet asupra temperaturii și consumului.
Clasa energetică A: Costuri reduse la utilități și un impact minim asupra mediului.
Avantaje suplimentare
Loc de parcare inclus – fără grija unui spațiu de parcare.
Bloc nou, izolat termic, construit în 2024 – calitate superioară și durabilitate.
Materiale de calitate: Geamuri PVC cu termopan, uși interioare din lemn, pereți finisați cu vopsea lavabilă.
O locație care îți simplifică viața
Situat în zona Doamna Stanca, la granița dintre Sibiu și Șelimbăr, acest apartament îți oferă acces rapid la tot ce ai nevoie:
Shopping City Mall, magazine și supermarketuri.
Stații de transport, școli și grădinițe.
Restaurante, farmacii și alte puncte de interes.
Un apartament ideal pentru locuit sau investiție
Fie că îți dorești un cămin modern cu grădină proprie, fie că ești în căutarea unei investiții sigure, acest apartament îți oferă avantajele perfecte.
Nu rata ocazia! Contactează-ne astăzi pentru detalii și programează o vizionare.