Detalii
Apartament modern cu 2 camere, cu balcon si parcare proprie – Zona Doamna Stanca, Sibiu
Cauți un apartament modern, gata să devină căminul tău? Acest apartament cu 2 camere, situat într-un ansamblu rezidențial de top, este soluția perfectă! Amplasat strategic în zona Doamna Stanca, la limita dintre Șelimbăr și Sibiu, îți oferă acces rapid la tot ce ai nevoie: stații de transport, școli, grădinițe, magazine și Shopping City Mall.
Spațiu și funcționalitate:
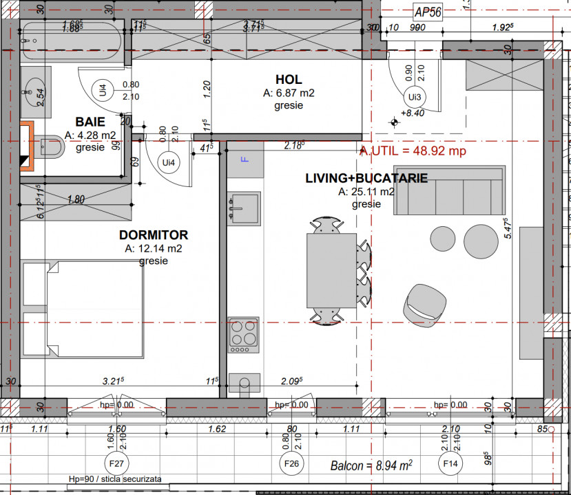
Suprafață utilă de 49 mp: Apartamentul este decomandat, cu 2 camere bine compartimentate, o baie modernă și un balcon generos.
Poziționare: Situat la etajul 3 al unui imobil nou, cu doar 3 etaje, construit în 2024.
Dotări și finisaje de calitate:
Finisat la cheie: Gresie, parchet, faianță și obiecte sanitare incluse, astfel încât să te bucuri de un spațiu complet amenajat.
Încălzire în pardoseală: Confort termic superior și eficiență energetică.
Clasa energetică A: Economii substanțiale la utilități și un impact minim asupra mediului.
Centrală proprie: Control total asupra temperaturii și consumului.
Avantaje suplimentare:
Izolație termică exterioară: Blocul este construit pentru a asigura confortul termic pe tot parcursul anului.
Calitate în detalii: Geamuri PVC cu termopan, uși interioare din lemn și panel, și pereți finisați cu vopsea lavabilă.
Locație excelentă: Acces facil la toate punctele de interes, făcând din acest apartament o alegere ideală pentru locuit sau investiție.
Nu rata ocazia de a te muta într-un apartament modern, amplasat într-o zonă foarte căutată. Fie că îți dorești un loc pe care să-l numești acasă sau o investiție sigură, acest apartament are toate avantajele necesare.
Contactează-ne astăzi pentru mai multe detalii și programează o vizionare! Viitorul tău cămin te așteaptă!